10.06.2022 11:30:17
Sieradz

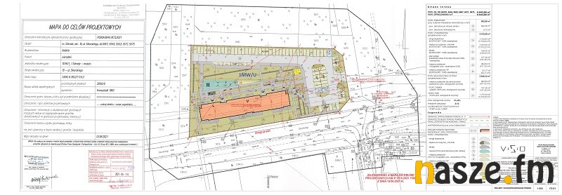
Nowe mieszkania w Sieradzu

48 mieszkań komunalnych, w tym dwa przystosowane dla osób niepełnosprawnych, pięć kondygnacji, parkingi, plac zabaw - sieradzki magistrat ogłosił przetarg na budowę wielorodzinnego budynku mieszkalnego. Nowy blok powstanie przy ul. Generała Władysława Sikorskiego

(fot. arch. Urząd Miasta Sieradza)

Na poziomie parteru zaprojektowanego budynku przewidziano 8 lokali mieszkalnych, w tym 2 lokale mieszkalne przystosowane dla osób niepełnosprawnych, komórki lokatorskie przynależne dla każdego z mieszkań, dostępne bezpośrednio z korytarza, pomieszczenia techniczne, węzeł cieplny, rozdzielnię elektryczną.

Na kolejnych kondygnacjach (I-IV) znajdować się będzie po 10 lokali mieszkalnych wraz z komórkami lokatorskimi. W budynku znajdą się mieszkania 2 i 3 pokojowe.

Przy budynku powstaną miejsca parkingowe, oświetlenie, drogi dojazdowe, wiaty śmietnikowe, plac zabaw, zieleń. Całość będzie ogrodzona.

Urząd Miasta na oferty wykonawców czeka do 24 czerwca 2022. Zwycięzca postępowania przetargowego będzie miał 20 miesięcy na realizację inwestycji. Licząc od dnia podpisania umowy.

Nowy budynek w liczbach:

- powierzchnia zabudowy - 853,98 m²,
- powierzchnia użytkowa - 3.292,87 m²,
- powierzchnia całkowita - 4.843,90 m²,
- kubatura obiektu - 13.220,05 m²,
- wysokość budynku - 15,59 m (do attyki 16,22 m),
- długość budynku - 68,77 m,
- szerokość budynku - 12,67 m.
- liczba kondygnacji nadziemnych - 5,

bp / źródło: Urząd Miasta Sieradza

Komentarze

Do Paweł
12.06.2022 19:01:39
A czy ktoś zabronił Ci starać się o takie mieszkanie???
Do Paweł
12.06.2022 18:57:02
Ciekawe czy byś był tak samo mądry gdybyś przez zrządzenie losu został sam przypuśćmy z małym dzieckiem??? Samo zakasanie rękawów do pracy wystarczyło by żebyś dostał kredyt w banku i zapewnić sobie i dziecku dach nad głową? Masz pewność że Ci co się starają o takie mieszkania wszyscy bez wyjątku są pospolitymi leniami żyjącymi tylko z zasiłków? Nie masz. Wielu jest takich którzy pracują uczciwie, płacą podatki.
Paweł
12.06.2022 09:02:03
Szkoda że z moich podatków niezaradni życiowo będą mogli mieszkać w nowym bloku. Mnie mamusia i tatuś nie kupili mieszkania i nie dostałem z zasobów komunalnych. Pracuję na etacie, żona też pracuje pomimo niepełnosprawności, mamy dwoje dzieci, jedyny dodatek to 500+. Od 10 lat spłacamy kredyt hipoteczny za własne M. Więc gadanie że kogoś nie stać na kredyt to wyłącznie wygodnictwo. Wystarczy zakasać rękawy i do pracy. A i racjonalnie gospodarować pieniędzmi.
do "uwaga..."
11.06.2022 23:34:53
obniżanie temperatury jest bezczelne?? i inne takie kwiatki w tym komentarzu..
Do Justysia
11.06.2022 14:32:35
To, że może Tobie tatuś z mamusią mieszkanie kupili nie uprawnia Cię żeby ludzi mniej bogatych od patologii wyzywać
Uwaga patrzcie w przyszłość !!!!
10.06.2022 19:26:45
Proszę aby budując w tej okolicy następne budynki pamiętano aby nie zablokować korytarza odpowiedzialnego za wymianę powietrza w tej części miast i nie tylko. Ciągiem ul Sikorskiego jest dostarczane świeże powietrze z terenów otwartych a wiatr mam właśnie głównie z zachodu. To pozwala na przedmuchiwania zanieczyszczeń i obniżanie temperatury latem które jest bezczelne. Nie róbmy zabetonowanego miasta jak no. Warszawa gdzie już jest za późno na naprawę błędów urbanistycznych. Żaden oczyszczacz powietrza wam nie pomoże gdy za oknem powietrze nie będzie wymieniane.
Do Sieradz
10.06.2022 19:15:23
A kogo w dzisiejszych czasach stać na kredyt?
Sieradz
10.06.2022 17:58:28
Dlaczego wrzucacie wszystkich do jednego worka że Patologia?? Czy to że ktoś samotnie wychowuje dziecko, uczciwie pracuje i płaci podatki ale mimo starań na kredyt z banku nie ma co liczyć to też jest Patologią?? Może to jedyny sposób żeby zapewnić sobie i dziecku stabilizację w życiu? Trochę empatii.
Do lol
10.06.2022 15:58:29
Jak bierzesz 500+ to być może byłaby szansa ale za to, że prowadzisz działalność gospodarczą już nie dostaniesz.
do lol
10.06.2022 15:49:30
Niestety nie......W statystykach zapewne widniejesz jako ten "bogaty", a dodatkowo skoro prowadzisz działalność to według władcy jarosława jesteś "cwaniak", więc tym bardziej Ci się nie należy.....
Justysia
10.06.2022 15:48:01
I znów mieszkania dostanie patologia Zniszczą szybciej niż na Orzechowej Pany zza bramy kurde !
Qaz
10.06.2022 15:34:43
Mieszkanie komunalne za free, 500+ też za free, inne pomoce socjalne też za free.
lol
10.06.2022 14:11:49
Prowadzę działalność, płacę podatki, mam dwójkę dzieci. Pytanie, czy otrzymam przydział do takiego mieszkania?
heh
10.06.2022 14:06:06
Teraz budują ogrodzone. A komunista jak stawiał blokowiska, to nawet łączył dwa bloki w kształt litery, gdzie sąsiad sąsiadowi przez okno do mieszkania zagląda....
Ziomek
10.06.2022 13:23:58
szkoda....było tak cicho i spokojnie w tej części Sikorskiego...
adaw
10.06.2022 12:56:16
I po co takie obiekty jak budynki mieszkalne grodzić i robić z tego obozy.
Rakoczy
10.06.2022 12:15:19
Jak nie będzie płotu i tylko jednego wyjścia to nie biorę!!! Całe osiedle sąsiadów musi wiedzieć kto z kim i o której przychodzi i wychodzi jak na tym osiedlu grodzonym na 11 listopada/Reymonta
qwerty
10.06.2022 12:13:28
Budynek będzie ogrzewany tanim ciepłem geotermalnym. Tak zresztą jak i pozostałe budynki. Szybko się okaże ze to co niby darmowe, to jest najdroższe.

Więcej informacji

Sieradz
KULTURA

Mistrz, uczniowie i tłum gości

Wczoraj, 22:36:56

Dziś wieczorem w Biurze Wystaw Artystycznych w Sieradzu, z okazji jubileuszu 50-lecia pracy twórczej, świętował Zbigniew Woźniak. Były upominki, kwiaty, rozmowy i otwarcie wystawy "Dwa światy". Do wspólnego świętowania artysta zaprosił swoich uczniów: Izabelę Domańską, Beatę Króliczak-Zajko, Beatę Szczepaniak, Tomasza Krawczyka i Piotra Mastalerza.

0
Sieradz
KULTURA

Amerykańska wokalistka wystąpi w Sieradzu

Wczoraj, 16:33:47

W sobotę 14 marca we foyer nowego budynku Sieradzkiego Centrum Kultury wystąpi Siggy Davis. Charyzmatyczna wokalistka pochodząca z Nowego Jorku, obdarzona potężnym, soulowo-jazzowym głosem. - Zabierze Państwa w muzyczną podróż pełną emocji i energii - zapowiadają organizatorzy.

0
region

Marcowa korekta rozkładu jazdy pociągów

Wczoraj, 15:52:27

Od niedzieli, 8 marca, zacznie obowiązywać korekta rozkład jazdy pociągów 2025/2026, która przyniesie nieco zmienione godziny odjazdów pociągów. Przez stację Zduńska Wola Karsznice pojadą kolejne pociągi objazdowe do Gdyni, Katowic czy Bielska Białej.

0
Nasze Radio 104,7 FM
Co teraz?
On Air
06:24
Nie Ma Takich Gór
Maciek Starnawski
Nasze Radio 92,1 FM... nostalgicznie!
Co teraz?
On Air
06:23
Niekochane dziewczyny
Trubadurzy
00:00 00:00
5.03.2026 Rozpoczęły się wiosenne porządki na drogach i chodnikach
4.03.2026 Światowy Dzień Otyłości. Anna Leder, rzecznik łódzkiego oddziału NFZ
4.03.2026 Gotuj z Dominikiem - odc.140
4.03.2026 Dzień Kobiet z Teraz Ja i 4. urodziny
4.03.2026 Program Posesja. Gościem Michał Wzgarda, przewodniczący Rady Powiatu Sieradzkiego cz. III

Co, gdzie, kiedy

07.03.2026
Wernisaż wystawy malarstwa Katarzyny Krauze - Romejko
Pałac w Małkowie
24. Turniej Amatorów w Halowej Piłce Nożnej o Puchar Mediów - 1. dzień
Hala sportowa w Warcie
21. kolejka III ligi: Warta Sieradz - Ząbkovia Ząbki
MOSiR Sieradz (sztuczne boisko)
08.03.2026
24. Turniej Amatorów w Halowej Piłce Nożnej o Puchar Mediów - 2. dzień
Hala sportowa w Warcie
Koncert zespołu Czerwone Gitary
Teatr Miejski w Sieradzu
XIII Otwarte Mistrzostwa Sieradza - Memoriał Kazimierza Januszkiewicza w Piłce Siatkowej
Hala MOSiR-u Sieradz przy Łokietka / Hala SP nr 10 w Sieradzu
09.03.2026
Wernisaż wystawy
Muzeum Historii Miasta Zduńska Wola
25 lat w Oriencie
Biblioteka Pedagogiczna w Sieradzu
Więcej...








Lista przebojów HitFM Naszego Radia
1
Bruno Mars
I Just Might
2
Kungs, Theophilus London
Galaxy
3
Jonatan, Pezet, Livka
Obejmuję noce
Nasze Radio 104,7 FM
🎵 Ładowanie...